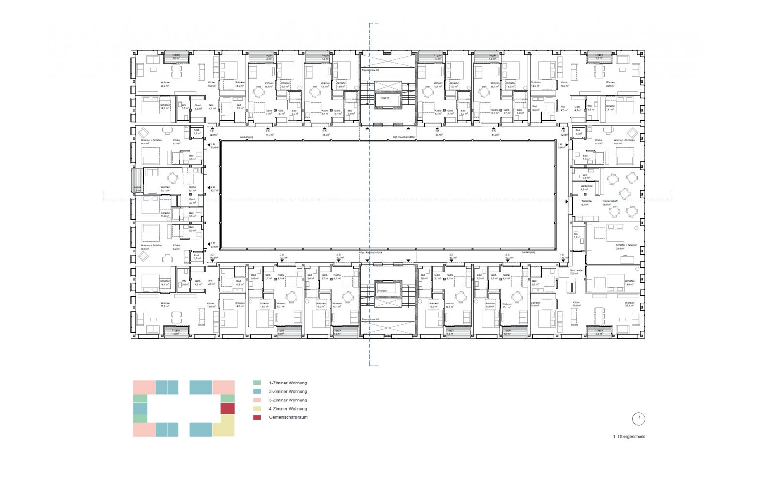
Der Entwurf ist auf den Grundlagen des Gestaltungshandbuches für die Springbachhöfe entwickelt. Die Wohnungen und Gemeinschaftsräume in den Obergeschossen, orientieren sich in erster Linie nach Außen – in das Grün beziehungsweise zu den Nachbarn, oder in den Straßenraum. Jede Bewohner*In nimmt auf diese Weise selbstverständlich am Leben im Quartier teil. Durch die einfache und übersichtliche Erschließung über einen zum Teil offenen Laubengang und den Umgang im Gartenhof schaffen wir Räume für Begegnungen, die die Haus-Gemeinschaft stärken werden.
Grundgedanke ist der städtebauliche Block. Das Gebäude ist klar strukturiert, die Geschosse in der Fassade ablesbar. Der Maßstab orientiert sich an den Bewohner*Innen. Die Gestaltung der Fassade ist vielfältig im Großen – mit Loggien und Fenstern, den
Laubengängen und dem Hof, und differenziert an der Oberfläche – die strukturierte gegliederte Holzfassade steht auf einem Sicht-Betonsockel. Die Materialien bleiben ablesbar – roh belassene Oberflächen in den Treppenhäusern und im Kellergeschoss, die Materialität im Ausbau sichtbar, Decken in Sichtbeton. Insgesamt materialgerecht konstruiert und sparsam im Umgang mit Ressourcen ist das Gebäude kostengünstig zu erstellen.
In den Obergeschossen sind 40 Wohnungen zwischen 35 und 129 qm – 1 bis 4 Zimmer Wohnungen, 2 WGs mit 7 Schlafzimmern, je 353 qm mit Dachterrasse geplant. Alle Nutzungen werden barrierefrei gestaltet, ganz im Sinne des Universal Design. Der Quartierstreff, die Sozialstation, und z.B. eine Praxis für Physiotherapie und ein Café im Erdgeschoss verknüpfen das Haus mit der Nachbarschaft. Zwei Gemeinschaftsräume in den Obergeschossen, je 46,5 qm, komplettieren das Programm des Projektes.
Zentrum der Freianlagen ist der Gartenhof. Eine landschaftlich gestaltete Grünfläche mit Bäumen und Sitzgelegenheiten in direkter Verbindung zu Sozialstation, dem Quartierstreff, bietet Bewohner*Innen, Gästen und der Nachbarschaft Raum zu Austausch und Begegnung. Die Dachterrasse ist als Landschaft und zum Verweilen, Arbeiten und Spielen, nach Süd-Osten orientiert. Sitzgelegenheiten, Hochbeete und eine vielfältige Bepflanzung charakterisieren diesen Außenraum.
Im Erdgeschoss entwickeln sich Mietergärten mit offenen Terrassen, als Sichtschutz zwischen den Terrassen dienen frei wachsende Sträucher, beispielsweise Pfeifenstrauch. Die Gartengestaltung ist von Kräuterhochbeeten, klein-kronigen Bäumen, die Schatten spenden, z.B. Feldahorn oder Zierapfel, geprägt. Zur Straße und zum Kindergarten sind eine Terrasse für das Café, abgetreppt mit Sitzstufen und Blumenterrassen, sowie Fahrradstellplätze für Gäste das verknüpfende Element zur
Nachbarschaft. Zu den nördlichen Nachbarn wird das Gelände frei moduliert. Ein landschaftlicher Übergang zur Höhenanpassung, mit Wiese und Bäumen, durch Sträucher verdichtet, schaffen den Anschluss zum Nachbargrundstück – zugleich abschirmend als auch offen. Nach Westen wird der Außenraum etwas abgeschirmt, dichtere Sträucher, kleine und große Bäume, zum Beispiel Feldahorn und Zier-Obstbäume, Heckenkirschen und Flieder, sorgen für den zu dieser Seite notwendigen Schutz.





