Wohnen am Wasser – Regattastraße, Berlin
Das Wohngebäude an der ehemaligen olympischen Regattastrecke entstand im Rahmen der Neuentwicklung eines Wohnquartiers in Berlin-Grünau (Bezirk Treptow-Köpenick). Um einen Wasserspiegel, der in die Dahme mündet, bilden acht Gebäude zusammen eine Art Blockrand. An der Ecke dieses Blockrands ist das fünfgeschossige Haus Regattastraße 31 wie ein Torwächter positioniert. Die Torsituation des Gebäudes wird bei Dunkelheit durch eine Lichtinstallation betont: eine golden glimmende Außenbeleuchtung verleiht ihm besondere Aufmerksamkeit. Die mit einem Edelstahlnetz gefüllten Fenster des Laubengangs bieten Orientierung und einen weiteren inhaltlichen Bezug zum Wasser.
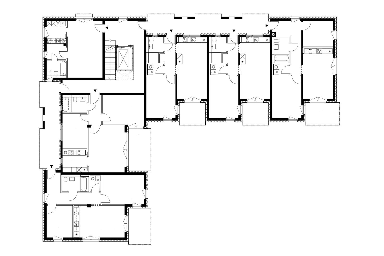
Der Zugang zum Haus erfolgt von der Regattastraße. Ebenerdig befindet sich auch eine Gewerbeeinheit, die bis zum Innenhof durchgesteckt ist. Aus Schallschutzgründen wurde straßenseitig eine Laubengangerschließung gewählt, die Loggien und Freibereiche sind dagegen alle zum ruhigen Innenhof und zum Wasser hin orientiert. Die Laubengang-Lösung erlaubt zum einen die effiziente Erschließung: Mit nur einem Aufzug können alle 26 Wohnungen erreicht werden. Zum anderen sind die Laubengänge wie die Loggien gestaltet, so dass an allen sechs Gebäudefronten einheitliche Fassaden entstehen.
Auf die Gestaltung des Treppenhauses wurde besonderes Augenmerk gelegt. Ein zentrales Oberlicht sendet natürliches Licht durch alle fünf Wohngeschosse und regt die Besucher und Bewohner zur Bewegung an. Im Treppenhaus ergeben sich interessante Blickachsen, zwei horizontale und eine vertikale pro Geschoss. Die Innenwände der Treppenpodeste sind mit kontrastierenden Kacheln akzentuiert, woraus sich interessante Blicke durch die Geschosse ergeben. Die Wohnungen sind barrierearm gestaltet.
Projekttyp
- Wohnungen im Universal Design
Nutzung
- 26 WE
- 1 Gewerbeeinheit
Bauherr
- BUWOG Regattastraße Development GmbH
Fertigstellung
- Juni 2019
BGF
- 3.280 qm
Fotos
- Jan BItter











