Tagespflege und Pflegestützpunkt Luckenwalde
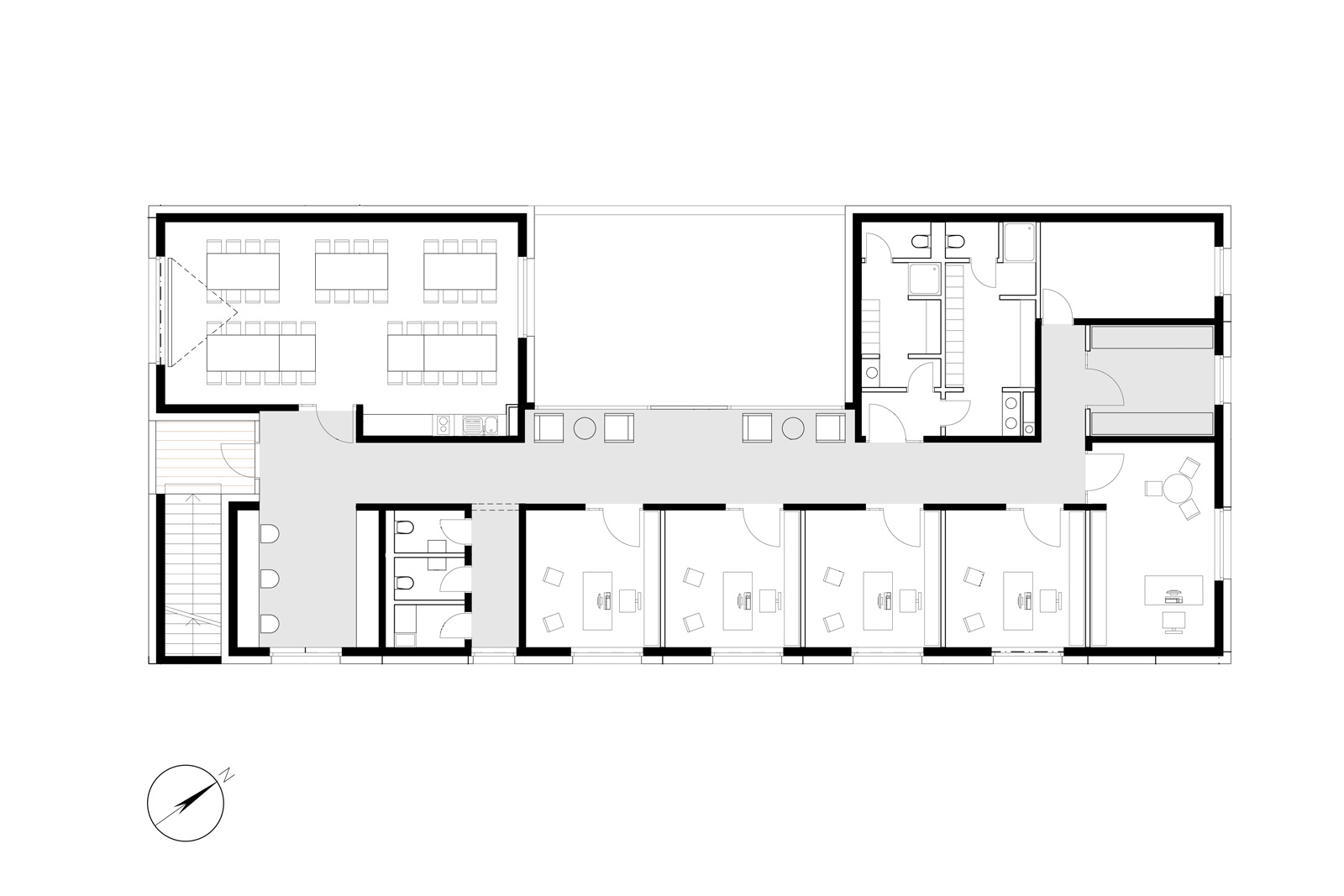
In Luckenwalde, südlich von Berlin, enstand eine neue Tagespflegestation mit 14 Plätzen sowie Räume für einen ambulanten Pflegedienst. Der Bauherr, das DRK Teltow-Fläming, nutzte einen notwendig gewordenen Umzug seines Hauskrankenpflegedienstes um in dem Neubau maßgeschneiderte Büro-, Pausen- und Umkleideräume für die 63 Mitarbeiter zu verwirklichen. Der Pflegedienst ist im 1. OG untergebracht, dort befinden sich auch Beratungsräume für Angehörige. Das Erdgeschoss wird für die Tagespflege genutzt, ein Innenhof ist als besondere Ruhezone gestaltet. Der zweigeschossige lichtgraue Baukörper wird durch Farbakzente in DRK-Rot akzentuiert – ein Verweis auf seine Nutzer.
Projekttyp
- Neubau Tagespflege und ambulanter Pflegedienst
Nutzung
- Tagespflege mit 14 Plätzen
- Büro- und Aufenthaltsräume
Bauherr
- Deutsches Rotes Kreuz Kreisverband Fläming-Spreewald e.V.
Fertigstellung
- 2019
BGF
- 666 qm
Fotos
- Martin Tervoort








