Quartier St. Leonhard – Theater und Förderstätte
Mit der Entwicklung des Quartiers St. Leonhard konnte eine jahrzehntealte Stadtbrache wieder mit Leben erfüllt würden. Auf dem Gelände des gleichnamigen Stadtgutes aus dem 19 Jahrhundert entstand ein neues Stadtviertel, in dem die Menschen in einer inklusiven, interkulturellen und intergenerativen Nachbarschaft wohnen und arbeiten.
Das städtebauliche Konzept ergänzt die gewachsene städtebauliche Struktur mit neuen Elementen und schafft ein soziales Quartier mit eigener Identität. Charakteristisch ist die Abfolge von Plätzen und Höfen, die sich in Funktion und Atmosphäre situativ unterscheiden und Wahlmöglichkeiten zwischen Orten mit verschiedenen Atmosphären und Qualitäten bietet.
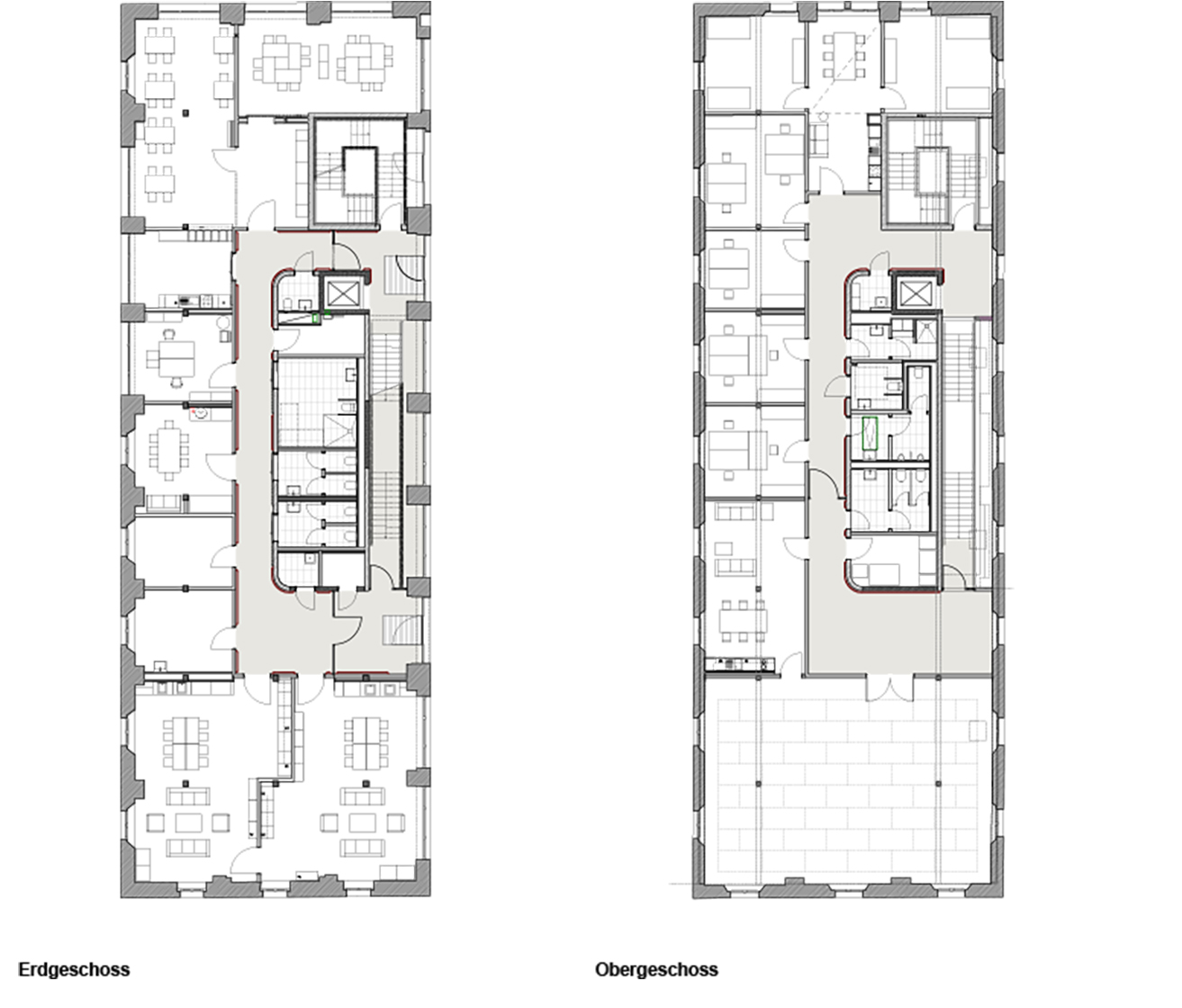
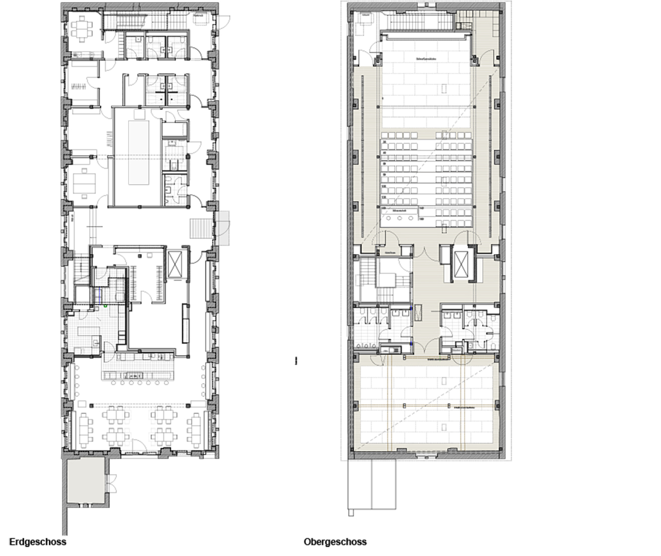
In aufeinanderfolgenden Bauabschnitten ist ein Gebäudeensemble gewachsen, in dem eine Kita, ein Internat, betreute Wohnungen und Wohngemeinschaften für Menschen mit Behinderung, eine Tagespflege und Servicewohnungen für Senioren, ein ambulanter Dienst, zwei Tageskliniken für Menschen mit Sucht- und psychosomatischen Erkrankungen, barrierefreie Wohnungen im universal design, eine beschützende Förderwerkstätte, eine Spielstätte für freies und inklusives Theater und eine Quartiers Café beheimatet sind.
Respekt vor der überlieferten Struktur und die Umnutzung der Bestandsgebäude kennzeichnen den Entwurf in mehrfacher Hinsicht. Für die ehemaligen Stallscheunen konnten mit dem Café, dem Theater und der Förderwerkstätte Nutzungen gefunden werden, die vom Charakter der historischen Gebäude profitieren; deren rauer Charakter konnte als Reminiszenz an die wechselvolle Vergangenheit der Bauwerke erhalten und neu interpretiert werden.
Projekttyp
- Sanierung und Modernisierung zweier denkmalgeschützter Remisen aus dem 19. JH
Nutzungen
- Theater/ Cafe / Theaterpädagogisches Zentrum / Tagesförderstätte für Menschen mit Behinderungen
Bauherr
- Borek Immobilien GmbH & Co. KG
BGF
- 3.280 m²
Fertigstellung
- 2023
Fotos
- Marcus Ebener / Marian Almansa













