Alters- und Pflegezentrum Zollikofen, Schweiz
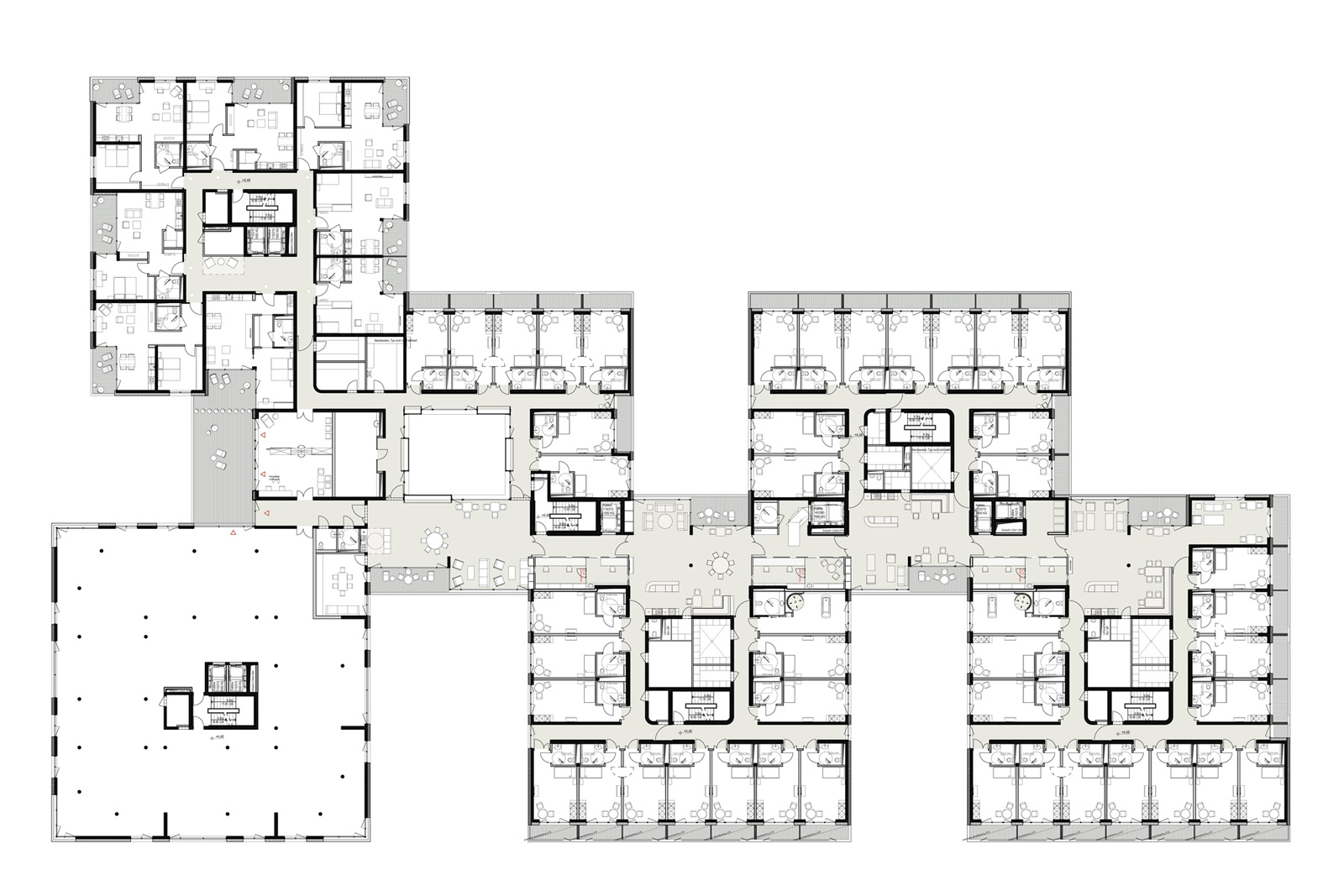
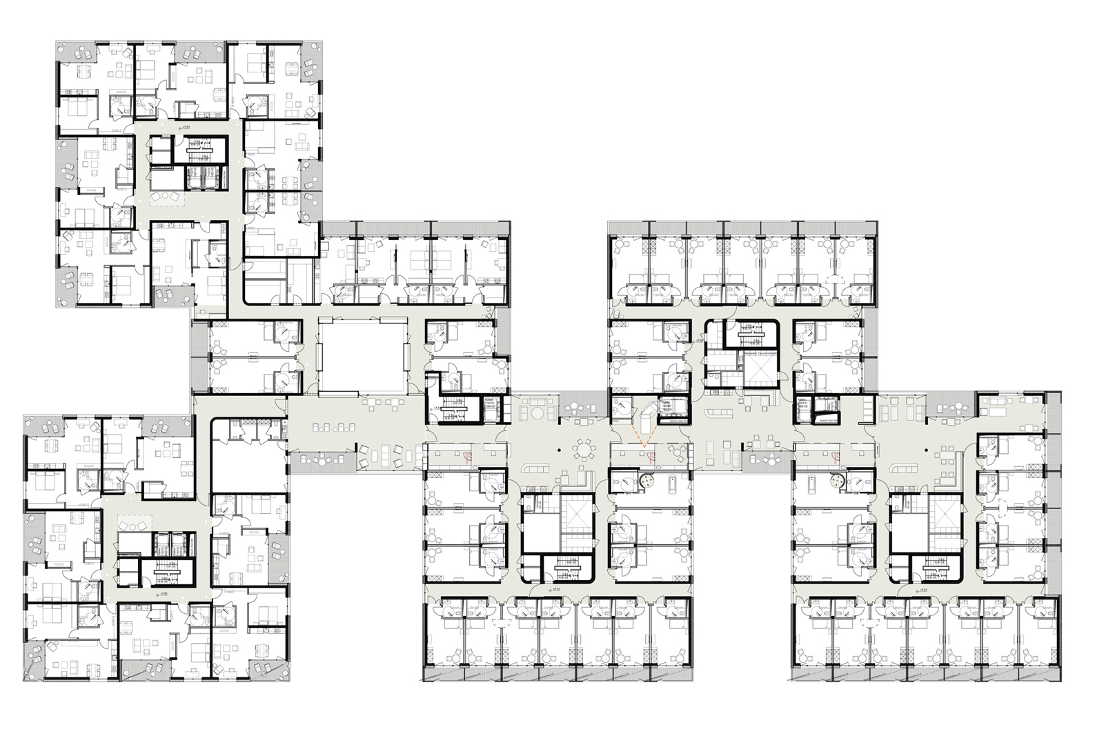
Das Alters- und Pflegezentrum in Zollikofen nahe Bern vereint betreutes Wohnen, Pflege und eine Vielzahl von Dienstleistungen in einem Ensemble. Auf vier Etagen wurden 169 Pflegeplätze in 163 Zimmern und 57 altersgerechte Wohnungen realisiert. Im Erdgeschoss befinden sich ein öffentliches Restaurant, eine Bäckerei mit Café und eine kleine Bibliothek. Eine Postfiliale, ein Friseur, ein Hörgeräteakustiker und ein Optiker ergänzen das Angebot.
Die Grundrisse erlauben in Obergeschossen einen flexiblen Nutzungswechsel zwischen Wohnen und Pflege. Innerhalb der Pflege ist sowohl ein Funktionalbereich mit mehr als 30 Plätzen auf einer Ebene als auch eine Gruppe mit maximal 15 Bewohnern denkbar. Möglich wird das durch die modulare Typologie: Sechs pavillonartige Kuben sind durch eine Mittelachse verknüpft, die eine mäanderartige Reihung der Zimmer erlaubt.
Durch das Alters- und Pflegezentrum entsteht in Zollikofen ein neues Zentrum, das bisher fehlte. Die zahlreichen öffentlichen Angebote und die attraktive Durchwegung des Gebäudes laden die Nachbarschaft ein und tragen zur Quartiersbildung bei.
Der Beitrag zum vorausgehenden Wettbewerb und der Vorentwurf wurden gemeinsam mit Marina Stankovic Architekten erarbeitet. Für die weitere Planung und Ausführung bildeten Feddersen Architekten mit dem Büro IAAG Architekten AG aus Bern eine ARGE.
2019 erhielt das Projekt eine Anerkennung als herausragender Gesundheitsbau der Architekten im Krankenhausbau und Gesundheitswesen e.V. (AKG) . Der AKG-Preis wird alle drei Jahre vergeben.
Projekttyp
- Neubau Pflegeheim und Seniorenwohnen, Gewerbeeinheiten
Nutzung
- 169 Pflegeplätze
- 57 Wohnungen
- Restaurant, Bibliothek, Post, Bäckerei mit Café, Friseur
Bauherr
- MEG Bernstraße Zollikofen
Betreiber
- Senevita AG
Fertigstellung
- 2018
BGF
- 20.500 qm
Fotos
- Stefan Müller-Naumann
- Alexander Gempeler
















