Pflege-Wohngemeinschaft Bodelschwingh-Haus, Ludwigslust
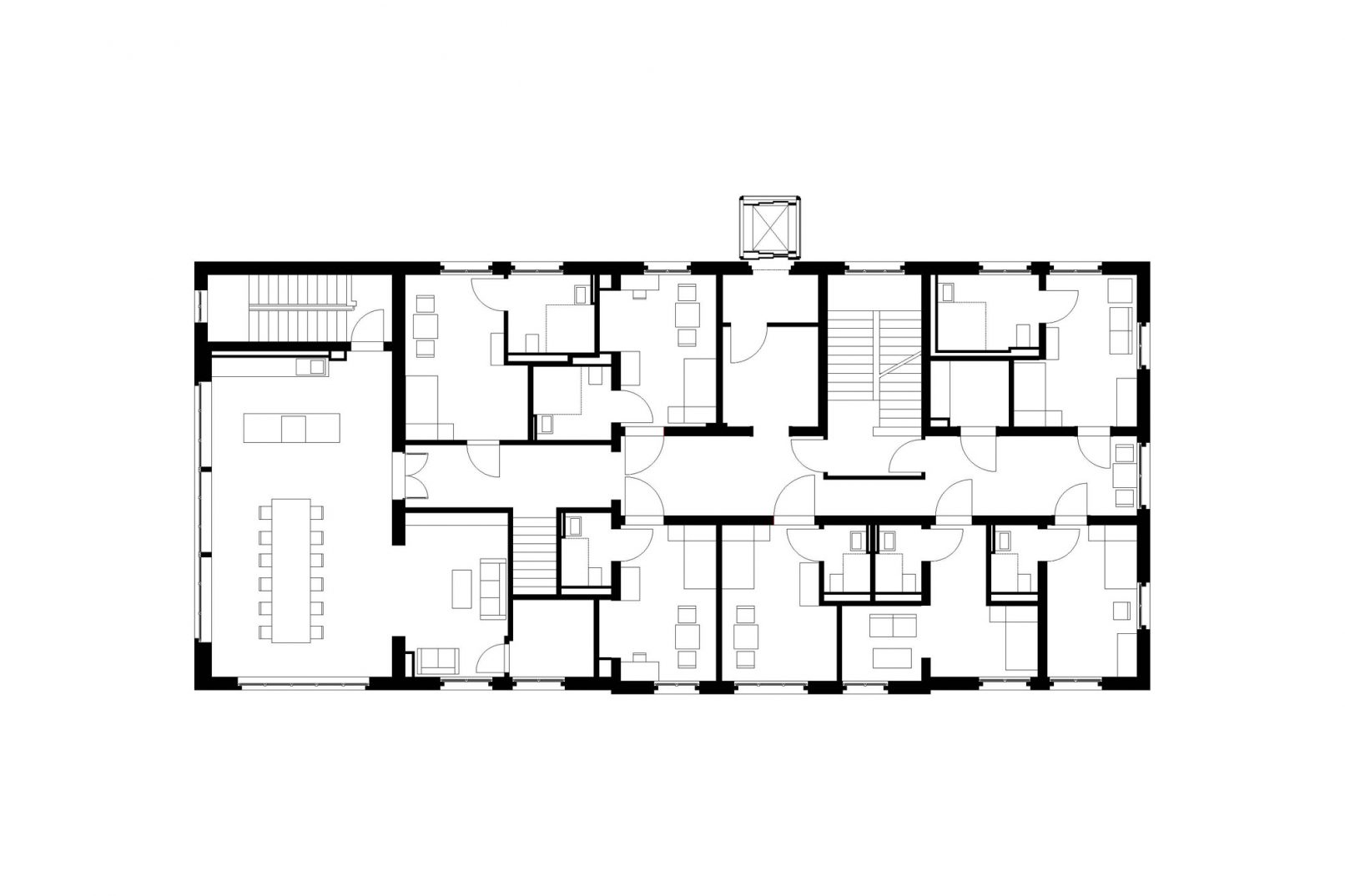
Der Altbau von 1913 auf dem Gelände des Stift Bethlehem wurde ursprünglich als „Siechenheim“ errichtet und ab 1968 als Kinderkrankenhaus genutzt. Seit dem Jahr 2000 stand das Gebäude leer. Nun wurde es zu einem Wohnhaus mit 2 Wohngruppen für psychisch kranke, pflegebedürftige Menschen umgebaut. Eine solche Nutzung ist in Mecklenburg-Vorpommern bisher einzigartig. Im Erdgeschoss befindet sich eine Wohngruppe mit 8 Zimmern, im 1. OG und im DG die zweite Wohngruppe mit 12 Zimmern sowie einer zusätzlichen Einliegerwohnung ohne Wohngruppenbindung. Zwei sehr große Gemeinschaftsräume mit Küche bieten jeder Wohngruppe Platz für gemeinsame Aktivitäten. Beide Wohngruppen sind barrierefrei und über einen Aufzug erreichbar.
Projekttyp
- Umbau im denkmalgeschützten Bestand
Nutzung
- WG I: 8 Plätze
- WG II: 12 Plätze
- 1 Einliegerwohnung
Bauherr
- Stift Bethlehem
Träger
- Stift Bethlehem
Fertigstellung
- 2017
BGF
- 1.370 qm
Fotos
- Jan Bitter






