KWA-Stift Hohenzollernpark Berlin
Das KWA Stift im Hohenzollernpark Berlin ist eines der führenden Kompetenzzentren für Wohnen im Alter in Deutschland. Unweit des Kurfürstendamms, inmitten einer mit alten Bäumen bestandenen Anlage, integriert das Stift individuelles Wohnen, umfangreiche Servicedienstleistungen und ambulante Pflege in einem Konzept. Lebensweltorientierte Bezugspflege kann je nach Bedarf an zentraler Stelle oder individuell in den Wohnungen in Anspruch genommen werden.
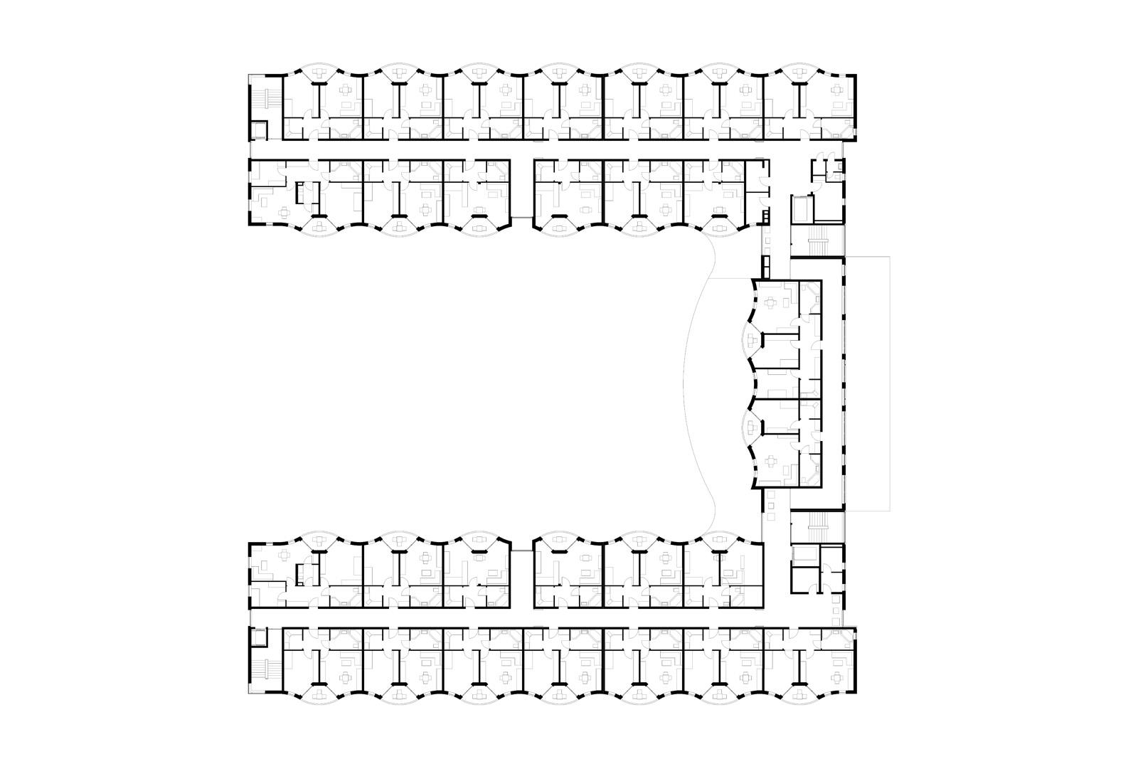
Die sechs Geschosse des U-förmigen Gebäudes beherbergen 142 Wohnungen, die sich in eineinhalb, zwei oder drei Zimmer unterteilen. Jede Wohnung verfügt über einen Balkon oder eine Terrasse. Das Eingangsfoyer erinnert mit seinem Empfangstresen und Sitzgruppen an die Lobby eines Hotels. Großzügigkeit kennzeichnet auch das Restaurant, den Veranstaltungssaal und die Clubräume, die sich ebenfalls im Erdgeschoss des Stifts befinden. In einer kleinen Ladenzone können sich Bewohner mit Waren des täglichen Bedarfs versorgen. Für sportliche Aktivitäten stehen im Untergeschoss ein Schwimmbad und Fitnessräume zur Verfügung. Mit seinem vielfältigen Service-Angebot erfüllt das Stift die Ansprüche vieler älterer Menschen, die sich neu orientieren möchten, ohne auf Sicherheit und Geborgenheit verzichten zu wollen.
Bauherr
- KWA Kuratorium Wohnen im Alter
Träger
- Bauherr
Plätze
- 142
Bauzeit
- 2000-2002
BGF
- 10.000 qm






