Generationenhaus Schöne Linse, Berlin
Die Schöneberger Linse ist derzeit ein größtenteils brachliegendes Gewerbegebiet in zentraler Lage, nahe am Bahnhof Südkreuz. Ziel des Konzeptverfahrens der Berliner Immobilien Management GmbH (BIM) war die Entwicklung eines neuen, attraktiven Quartiers mit über 900 Wohneinheiten, Geschäften, Büros, Restaurants und einem Hotel. Das 4.100 qm große Areal wurde dafür in vier Parzellen aufgeteilt, die im Rahmen von drei parallel laufenden Konzeptverfahren an unterschiedliche Bauherren (Baugruppen, Wohnungsbaugenossenschaften, soziale Träger) vergeben wurden.
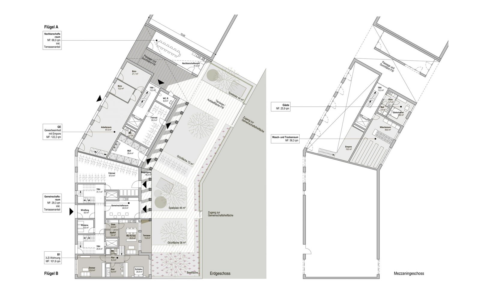
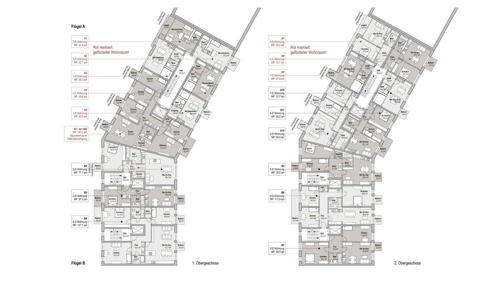
Das Stadthaus an der Westseite der Schöneberger Linse zeichnet sich durch eine Vielfalt an Wohnungsgrößen und -typologien aus. Der durchdachte Mix – von Mikrowohnen bis zu großzügigen Maisonetten und einer 4er-Wohngemeinschaft – richtet sich an eine breite Zielgruppe. Atelierwohnungen und gemeinschaftlich nutzbare Räume stärken den urbanen Charakter des Hauses und unterstützen die Verzahnung mit dem unmittelbar umgebenden Stadtraum.
Projekttyp
- Neubau Wohnungen
Nutzung
- 45 WE (1- bis 5-ZI)
- 1 WG-Wohnen (4 ZI)
- Gemeinschaftsräume, Dachterrasse
- Gästewohnung
- Atelier
- Gewerbe
Bauherr/Auslober
- BIM - Berliner Immobilien Management GmbH
- Stadtbürgergenossenschaft mit Bürgerstadt AG
Jahr
- 2017
BGF
- ca. 6.000 qm
Visualisierung
- Feddersen Architekten







