Begegnungsstätte Dohnagestell, Berlin
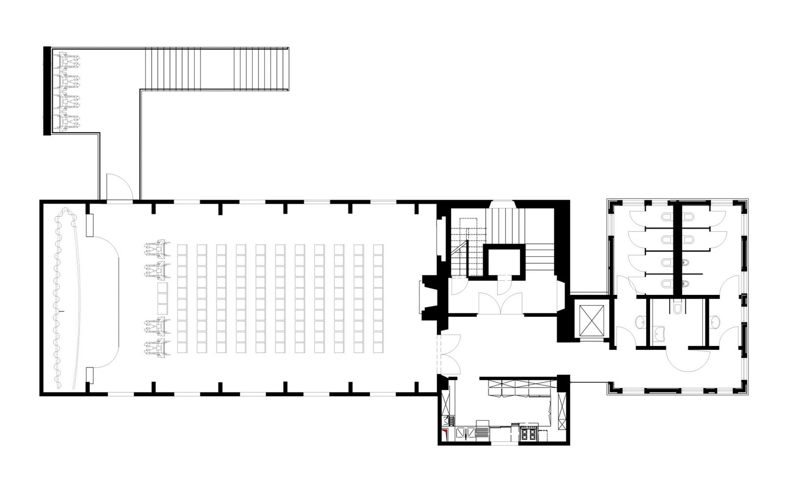
Durch einen Anbau konnte das denkmalgeschützte Familienheim am Dohnagestell in Berlin-Wedding zu einer barrierefreien Begegnungsstätte umgebaut und so für Menschen mit Behinderung erschlossen werden. Das zweigeschossige Bestandsgebäude liegt inmitten des Gartendenkmals Rehberge und wurde in den 1930er-Jahren als Jugendheim errichtet. Der neu angefügte Kubus nimmt die Materialität des Altbaus auf, setzt sich aber mit seiner Form selbstbewusst davon ab und interpretiert ihn gleichzeitig. Zwischen Alt- und Neubau dient ein schmaler Glaskörper als verbindende Fuge, in der ein Aufzug das Obergeschoss barrierefrei erschließt. Im Obergeschoss des Altbaus wurde ein Veranstaltungsraum eingerichtet. Daneben dient ein großzügiges Treppenpodest zum einen als Rettungsfläche für Rollstuhlfahrer, zum anderen als Terrasse mit Blick ins weite Grün.
Bauherr
- Lebenshilfe gGmbH
Bauzeit
- 2007-2008
BGF
- 680 m² (Bestand), 150 m² (Neubau)
Fotos
- Reinhard Görner








